Zwei Etagen voller Möglichkeiten - Ihre Maisonettewohnung in Oberriexingen
Ort: Oberriexingen
Beschreibung: Willkommen in Ihrem neuen Zuhause – einer attraktiven 3-Zimmer-Maisonette im Obergeschoss eines modernen 7-Familienhauses im Neubaugebiet von Oberriexingen. Im 2. Stock genießen Sie offenes lichtdurchflutetes Wohnen und einen traumhaften Balkon. Darunter erwarten Sie ein ruhiger Schlafbereich und ein großzügiges, flexibel nutzbares Zimmer.
Der Eingang der Maisonettewohnung befindet sich im 2. Obergeschoss. Der großzügige Wohn- und Essbereich ist hell, offen und der ideale Treffpunkt für gemütliche Abende. Ein Abstellraum und ein Gäste-WC runden diese Ebene ab. Highlight ist der überdachte Balkon auf dem Sie über die Dächer von Oberriexingen Weitblick genießen können. Im unteren Wohnbereich im 1. Geschoss erwartet Sie ein geräumiges Schlafzimmer mit Ankleidebereich, ein helles Tageslichtbad sowie ein weiterer großer Raum – perfekt als Büro, Gästezimmer oder für Ihr persönliches Hobby.
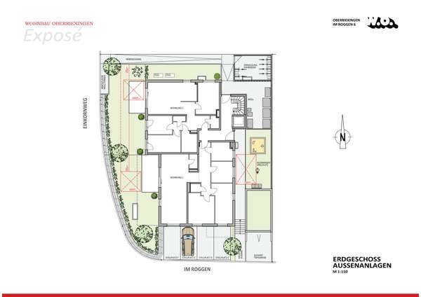
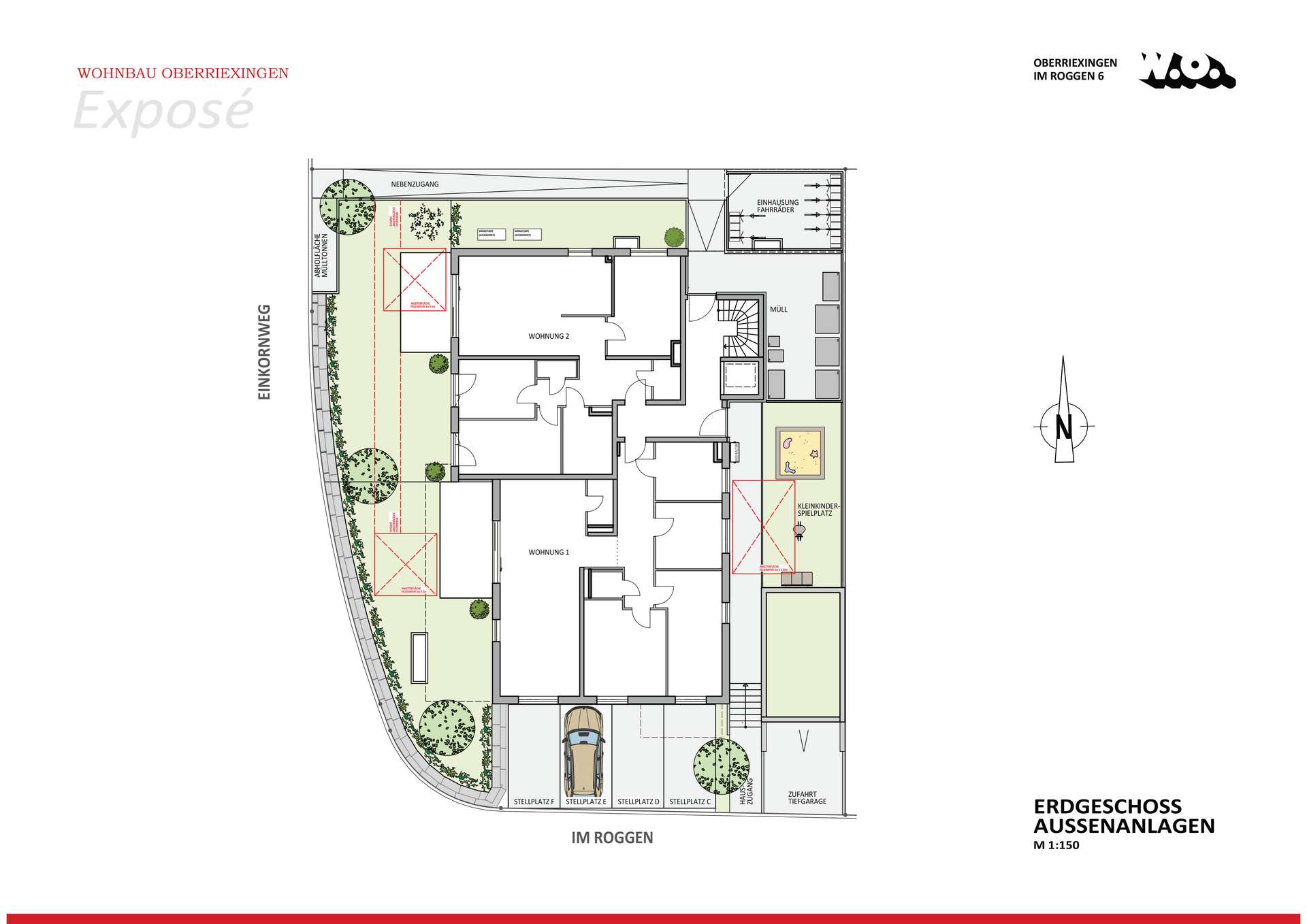
Dank Aufzug ist die Wohnung bequem erreichbar. Wärmepumpe und hauseigene PV-Anlage sorgen für angenehme Wärme und niedrige Betriebskosten. Im Untergeschoss stehen ein gemauerter Abstellraum sowie ein gemeinsamer Wasch- und Trockenraum bereit. Tiefgaragen- und Außenstellplätze machen das Ankommen entspannt.
Ihre neue Wohlfühloase wartet – einfach einziehen und genießen!
Lage: Willkommen in Oberriexingen – der kleinsten Stadt im Landkreis Ludwigsburg und einem Ort, an dem man das Leben genießen kann. Rund 3.300 Einwohner schätzen hier die ländliche Ruhe, die gewachsene Gemeinschaft und die Nähe zur Natur – ideal für alle, die Wert auf ein entspanntes, sicheres und gepflegtes Umfeld legen.
Alles, was Sie im Alltag brauchen, ist schnell erreichbar: Ein kleiner Lebensmittelladen, ein Getränkemarkt und mehrere Hofläden bieten frische Produkte aus der Region. In wenigen Fahrminuten erreichen Sie Vaihingen/Enz mit Ärzten, Apotheken, Banken und größeren Einkaufsmöglichkeiten – praktisch und komfortabel zugleich.
Auch für Freizeit und Geselligkeit ist gesorgt: Das traditionelle Inselfest, kulturelle Veranstaltungen und das lebendige Vereinsleben bringen Menschen zusammen. Wer es ruhiger mag, genießt Spaziergänge entlang der Enz, durch die Felder oder im Grünen rund um die Stadt – perfekt zum Abschalten und Durchatmen.
Oberriexingen verbindet das Beste aus zwei Welten: die Ruhe einer Kleinstadt mit der guten Anbindung an Ludwigsburg und Stuttgart über die B10 sowie mit Bus und Bahn.
Ein Ort zum Ankommen, Wohlfühlen – und das Leben in vollen Zügen genießen.
Ausstattung:
Die Highlights der Wohnung:
- großer Balkon
- großzügiger Grundriss,
- Fußbodenheizung in allen Räumen,
- Kameraanlage an der Haustüre,
- Verwendung ausschließlich langlebiger Ausstattungsmaterialien.
Sonderwünsche können selbstverständlich noch in vielfältiger Weise berücksichtigt werden.
Und keine Angst vor der berüchtigten Schwäbischen Kehrwoche: Ein Hausmeisterservice nimmt Ihnen all diese Pflichten ab.
Sonstiges:
Wir machen W.O.hnfühlen leicht mit der Wohnfühl-Service-App:
Exklusiv für unsere Neubauwohnungen! Ob Unterstützung beim Umzug, Fensterreinigung, kleinere Reparaturen etc. – all das und vieles mehr finden Sie bequem gebündelt in einer App.










