Schöne Wohnung fürs Alter - mit Platz für eine Pflegekraft in Oberriexingen
Ort: Oberriexingen
Beschreibung: Willkommen in Ihrem neuen Zuhause – einer großzügigen 3-Zimmer-Wohnung im 1. Obergeschoss eines modernen 7-Familienhauses im Neubaugebiet von Oberriexingen. Ideal für ein Paar mit Sinn für Komfort oder eine ältere Person mit Pflegekraft.
Im offenen Wohn- und Essbereich spielt sich das Leben ab, während das Schlafzimmer einen ruhigen Rückzugsort bietet. Der große Balkon lädt zum Frühstück in der Sonne, zum Grillabend oder einfach zum Entspannen ein. Das zusätzliche Zimmer eignet sich perfekt für eine Pflegekraft, ein Hobby oder Gäste. Das helle Tageslichtbad sorgt für einen frischen Start in den Tag, und das separate Gäste-WC bringt praktische Bequemlichkeit.
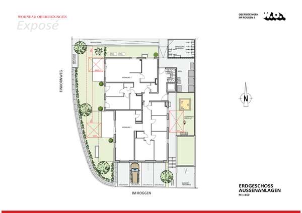
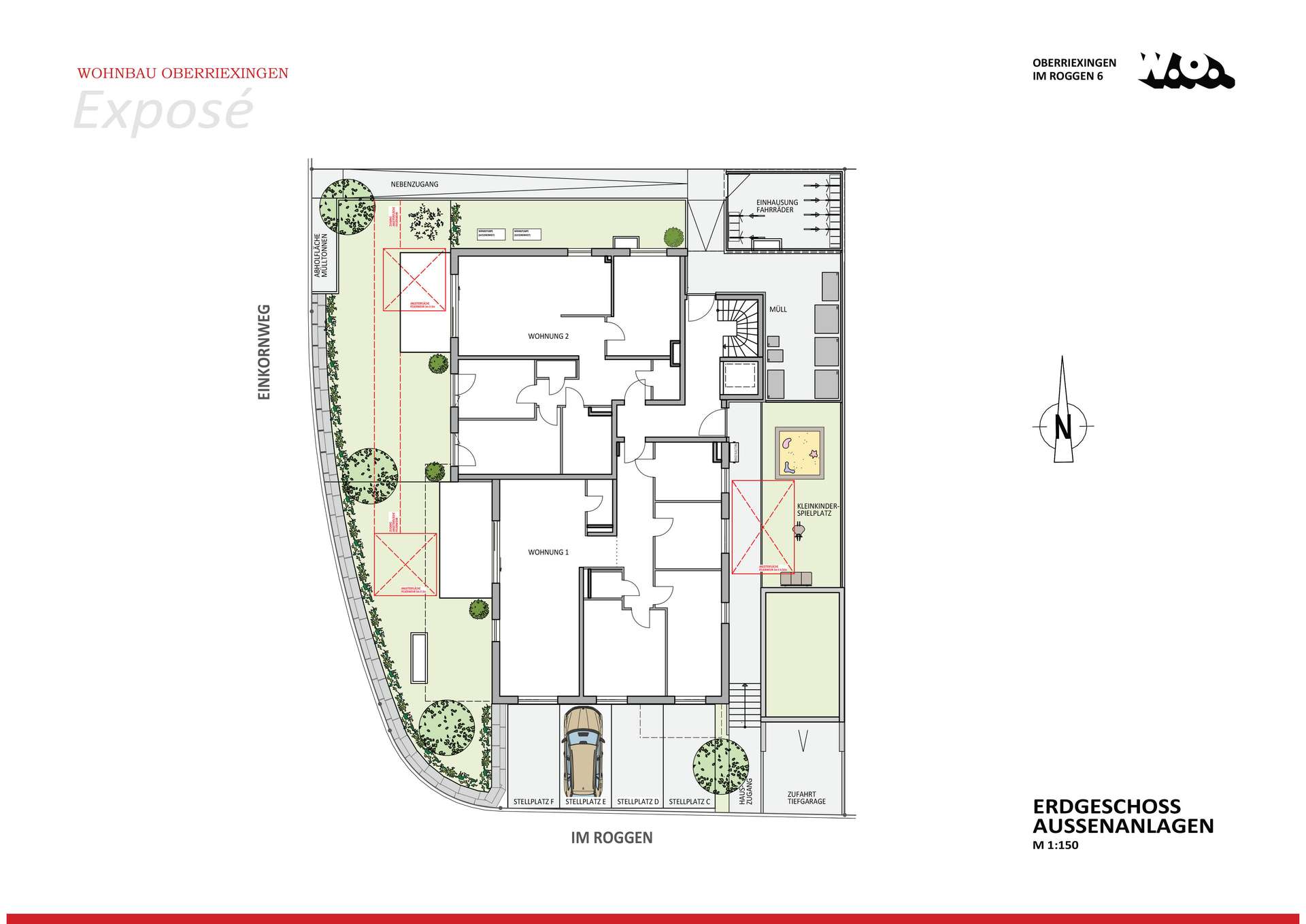
Altersgerecht und mit Aufzug machen die Wohnung auch mit Rollator oder Kinderwagen leicht zugänglich. Für wohlige Wärme und ein gutes Gewissen sorgen eine effiziente Wärmepumpe und die hauseigene PV-Anlage. Im Untergeschoss stehen ein gemauerter Abstellraum sowie gemeinsamer Wasch- und Trockenraum bereit. Tiefgaragen- und Außenstellplätze runden das Ganze ab.
Ihre W.O.hnfühloase wartet – greifen Sie zu!
Lage: Willkommen in Oberriexingen – der kleinsten Stadt im Landkreis Ludwigsburg und einem Ort, an dem man zur Ruhe kommt. Hier genießen rund 3.300 Einwohner die ländliche Gelassenheit und das angenehme Miteinander einer überschaubaren Gemeinde – ideal für alle, die ein ruhiges, sicheres und herzliches Umfeld schätzen.
Einkaufsmöglichkeiten für den täglichen Bedarf sind bequem erreichbar: Ein kleiner Lebensmittelladen, ein Getränkemarkt und mehrere Hofläden mit frischen regionalen Produkten versorgen Sie mit allem Wichtigen. Ärzte, Apotheken und größere Supermärkte finden sich im nahen Sachsenheim und Vaihingen/Enz – nur wenige Minuten mit dem Auto oder dem Bus entfernt.
Auch das gesellschaftliche Leben kommt nicht zu kurz: Das beliebte Inselfest, kulturelle Veranstaltungen und zahlreiche Vereine sorgen für Abwechslung und Gemeinschaft. Wer es ruhiger mag, findet auf den Spazierwegen entlang der Enz, in den umliegenden Wiesen und auf den Parkbänken im Grünen viele schöne Orte zum Verweilen.
Oberriexingen bietet Ihnen ein Stück heile Welt – mit guter Nachbarschaft, praktischer Infrastruktur und viel Natur vor der Haustür. Dank der schnellen Anbindung über die B10 sowie Bus- und Bahnverbindungen nach Ludwigsburg und Stuttgart bleiben Sie dabei jederzeit mobil.
Ein Ort zum Ankommen, Wohlfühlen und Bleiben.
Ausstattung:
Die Highlights der Wohnung:
- großer Balkon
- großzügiger Grundriss,
- Fußbodenheizung in allen Räumen,
- Kameraanlage an der Haustüre,
- Verwendung ausschließlich langlebiger Ausstattungsmaterialien.
Sonderwünsche können selbstverständlich noch in vielfältiger Weise berücksichtigt werden.
Und keine Angst vor der berüchtigten Schwäbischen Kehrwoche: Ein Hausmeisterservice nimmt Ihnen all diese Pflichten ab.
Sonstiges:
Wir machen W.O.hnfühlen leicht mit der Wohnfühl-Service-App:
Exklusiv für unsere Neubauwohnungen! Ob Unterstützung beim Umzug, Fensterreinigung, kleinere Reparaturen etc. – all das und vieles mehr finden Sie bequem gebündelt in einer App.










